HUCK CAP 2階建


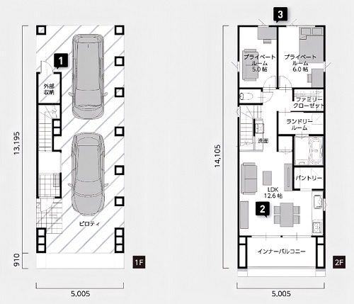
ピロティ内には使い勝手のよい外部収納を設置。
キャンプギアや季節のタイヤなど、外で使うものを屋内感覚で収納できます。

眺望を楽しめる2階には、開放的なワンフロア型のLDKを配置。
水まわりや個室も2階にまとめているため、ワンフロアで完結する"平屋のような暮らし"が叶います。

寝室+もう1室、あるいは2つの寝室など、おふたりのライフスタイルに合わせて自在にアレンジ可能。
趣味の部屋や書斎としても活用いただけます。

※掲載画像はイメージです。表示イメージは実際の商品と異なる場合がございます。
※仕様内容は諸事情により、変更となる場合がございます。
※床面積に関しては、屋内部分の床面積合計で記載しています。建築基準法上の面積詳細については担当取扱店へご確認ください。





